その他
| 価格 |
1,950万円 | 築年月(築年数) | 2003年 10月 (築22年) |
|---|---|---|---|
| 所在地 | 佐賀県佐賀市西与賀町大字厘外 1236-7 | 交通 | 長崎本線 「鍋島」駅 徒歩50分 バス15分 中村下車 徒歩3分 |
| 建物面積/坪数 | 264.86㎡ / 80.11坪 | 土地面積/坪数 | 575.00㎡ / 173.93坪 |
「利回り」は、当該不動産の1年間の予定賃料収入の不動産取得対価に対する割合であり、公租公課その他当該物件を維持するために必要な費用の控除前のものです。
また、予定賃料収入が確実に得られる事を保証するものではありません。

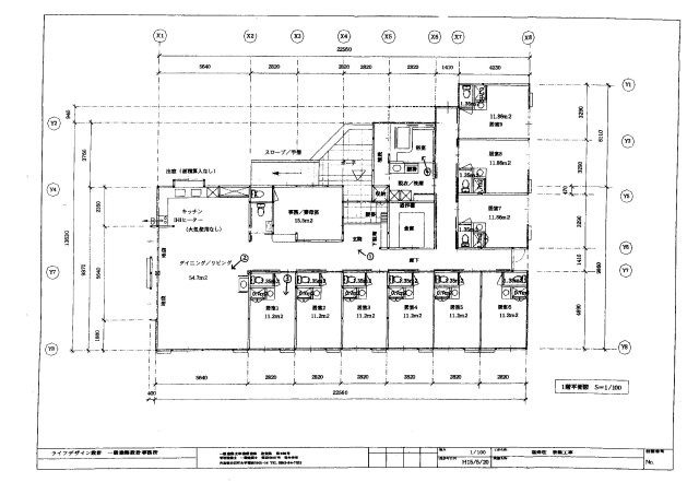
土地:173.93坪 建物:80.12坪 売グループホーム現況有姿渡し 寄宿舎 グループホーム(指定介護事業)向き(佐賀市役所 建築指導課での確認等が必要です) 個室9部屋あり(トイレ・収納・洗面化粧台付) 駐車場3台以上可 給湯器(電気温水器)・エアコン(故障箇所有り)・照明器具・コンロ(ガスとIH)
※地図上の物件位置は近隣に物件が所在することを表すものであり、実際の物件所在地とは異なる場合がございます。
0952-20-1212
営業時間:10:00~18:00 / 定休日:水曜日、お正月休、お盆休、社内研修日(不定期)
| 所在地 | 佐賀県佐賀市西与賀町大字厘外 1236-7 | ||
|---|---|---|---|
| 交通 | 長崎本線 「鍋島」駅 徒歩50分 バス15分 中村下車 徒歩3分 | ||
| 価格 | 1,950万円 | ||
| 築年月(築年数) | 2003年 10月(築22年) | 主要採光面 | 南 |
| 建物構造 | 木造 | 階数 | 1階建 |
| 私道負担面積 | セットバック | ||
| 建物面積 | 264.86㎡ | 土地面積 | 575.00㎡ |
| 接道状況 | 角地 (北側 公道3.7m 間口30.0m) (西側 公道3.1m 間口15.0m) | ||
| 建ぺい率/容積率 | 60%/ 100% | 土地権利 | 所有権 |
| 地目 | 宅地 | 地勢 | 平坦 |
| 土地の権利形態 | |||
| 都市計画 | 市街化調整区域 | 用途地域 | |
| その他法令上の制限 | |||
| 国土法届出 | 不要 | 取引態様 | 一般媒介 |
| 現況 | 空家 | 引渡し | 相談 |
| 駐車場 | 空有 | ||
| 設備条件 |
公共下水 / 公営水道 / プロパンガス
/ 室内洗濯機置場 / 電気有 / 温水洗浄便座
給湯は電気温水器 コンロはガスコンロとIH |
||
| その他条件 | |||
| 備考 | 市街化調整区域内で既存宅地ではありません。市街化調整区域内のため、用途が限られますのでグループホーム以外の業種の場合は佐賀市役所 建築指導課で都市計画法第43条の建築許可が必要です。また、グループホームの場合も社会福祉法の何条にあたるか確認が必要です。リビングのエアコン1台及び事務室のエアコン1台故障(現況渡し) | ||
| 周辺の学校 | |||
| 建築確認番号 | 物件番号 | 97268237 | |
| 情報公開日 | 2025年12月11日 | 次回更新予定日 | 2025年12月25日 |
| 取引条件の有効期限 | 2025年12月25日 | ||
| 取扱い会社 |
TOMカンパニー株式会社 〒840-0801 佐賀県佐賀市駅前中央2丁目9-7ホワイトビル1F・2F 佐賀県知事(8)第1876号 佐賀県宅地建物取引業協会会員 全国宅地建物取引業保証協会会員 |
||
0952-20-1212
営業時間:10:00~18:00 / 定休日:水曜日、お正月休、お盆休、社内研修日(不定期)
| 所在地 | 物件の住所を表示。(詳細住所は表示していない場合もある) | ||
|---|---|---|---|
| 交通 | 物件(部屋)の沿線駅・バス停を表示。(複数駅・バス停の利用が可能な場合は最大3件まで) | ||
| 間取り/詳細 | 数字は居室数を表示。LDKはそれぞれ「リビング」「ダイニング」「キッチン」、S(納戸)とは「納戸」「サービスルーム」「マルチルーム」「フリールーム」など建築基準法第28条に適合していないため、居室と認められない納戸その他の部分を表す。 | ||
| 価格 | 販売されている住戸の価格を表示。仲介手数料は含まない。 | ||
| 管理費 | 共同住宅の設備その他共用部分の維持および管理をするために必要な費用を表示。 | ||
| 修繕積立金 | 共用部分の修繕のために積立てる金額を表示。 | ||

【外観】