| 価格 |
3,999万円 | 交通 | 長崎本線 「佐賀」駅 徒歩18分 |
|---|---|---|---|
| 間取り | 4LDK | 所在地 | 佐賀県佐賀市八戸溝1丁目 7-15 |
| 建物面積/坪数 | 120.06㎡ / 36.31坪 | 土地面積/坪数 | 196.77㎡ / 59.52坪 |
新築一戸建住宅
| 価格 |
3,999万円 | 交通 | 長崎本線 「佐賀」駅 徒歩18分 |
|---|---|---|---|
| 間取り | 4LDK | 所在地 | 佐賀県佐賀市八戸溝1丁目 7-15 |
| 建物面積/坪数 | 120.06㎡ / 36.31坪 | 土地面積/坪数 | 196.77㎡ / 59.52坪 |
「利回り」は、当該不動産の1年間の予定賃料収入の不動産取得対価に対する割合であり、公租公課その他当該物件を維持するために必要な費用の控除前のものです。
また、予定賃料収入が確実に得られる事を保証するものではありません。

佐賀市エリアでの住まいなら、住み心地も快適な「八戸溝1丁目1号」はいかがでしょうか。キッチンにはIH調理器を使用しています。ゆとりのある快適なお住まいをお探しの場合は当社の4LDKの物件はいかがでしょうか。TOMカンパニーがお勧めする、佐賀市の売買一戸建てをご覧ください。0952-20-1212から、いつでもご質問等を受け付けております。

※地図上の物件位置は近隣に物件が所在することを表すものであり、実際の物件所在地とは異なる場合がございます。
0952-20-1212
営業時間:10:00~18:00 / 定休日:水曜日、お正月休、お盆休、社内研修日(不定期)
| 所在地 | 佐賀県佐賀市八戸溝1丁目 7-15 | ||
|---|---|---|---|
| 交通 | 長崎本線 「佐賀」駅 徒歩18分 | ||
| 価格 | 3,999万円 | ||
| 間取り |
4LDK
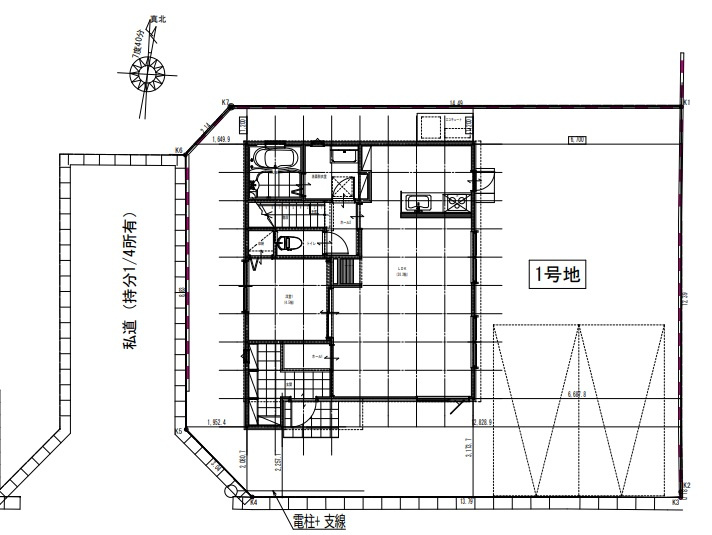
LDK 20.2帖 / 洋室 4.5帖 / 洋室 7.5帖 / 洋室 6.0帖 2室 / |
||
| 築年月(築年数) | 2026年 3月予定(建築中) | 主要採光面 | 南 |
| 建物構造 | 木造 | 階数 | 2階建 |
| 私道負担面積 | セットバック | ||
| 接道状況 | 角地 (南側 公道8.0m 間口16.8m) (西側 私道4.0m 間口8.8m) | ||
| 建ぺい率/容積率 | 70%/ 200% | 土地権利 | 所有権 |
| 地目 | 宅地 | 地勢 | |
| 土地の権利形態 | |||
| 都市計画 | 用途地域 | 第一種住居地域 | |
| その他法令上の制限 | |||
| 国土法届出 | 不要 | 取引態様 | 一般媒介 |
| 現況 | 未完成 | 引渡し | 2026年3月下旬予定 |
| 駐車場 | 有 | ||
| 設備条件 | 公共下水 / 公営水道 / バルコニー / オール電化 / IHクッキングヒーター / コンロ2口以上 / システムキッチン / 対面式キッチン / コンロ3口 / 洗髪洗面化粧台 / トイレ2ヶ所 / ウォークインクロゼット / 複層ガラス | ||
| その他条件 | |||
| 備考 | |||
| 周辺の学校 | 昭栄中学校(約1,587m / 徒歩20分) | ||
| 建築確認番号 | 第12505080号 | 物件番号 | 98313017 |
| 情報公開日 | 2025年11月17日 | 次回更新予定日 | 2025年12月1日 |
| 取引条件の有効期限 | 2025年12月1日 | ||
| 取扱い会社 |
TOMカンパニー株式会社 〒840-0801 佐賀県佐賀市駅前中央2丁目9-7ホワイトビル1F・2F 佐賀県知事(8)第1876号 佐賀県宅地建物取引業協会会員 全国宅地建物取引業保証協会会員 |
||
0952-20-1212
営業時間:10:00~18:00 / 定休日:水曜日、お正月休、お盆休、社内研修日(不定期)
| 所在地 | 物件の住所を表示。(詳細住所は表示していない場合もある) | ||
|---|---|---|---|
| 交通 | 物件(部屋)の沿線駅・バス停を表示。(複数駅・バス停の利用が可能な場合は最大3件まで) | ||
| 間取り/詳細 | 数字は居室数を表示。LDKはそれぞれ「リビング」「ダイニング」「キッチン」、S(納戸)とは「納戸」「サービスルーム」「マルチルーム」「フリールーム」など建築基準法第28条に適合していないため、居室と認められない納戸その他の部分を表す。 | ||
| 価格 | 販売されている住戸の価格を表示。仲介手数料は含まない。 | ||
| 管理費 | 共同住宅の設備その他共用部分の維持および管理をするために必要な費用を表示。 | ||
| 修繕積立金 | 共用部分の修繕のために積立てる金額を表示。 | ||

【外観】