| 価格 |
3,799万円 | 交通 | 長崎本線 「鍋島」駅 徒歩15分 |
|---|---|---|---|
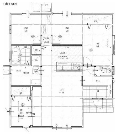
| 間取り | 4LDK | 所在地 | 佐賀県佐賀市鍋島町大字八戸 1151-2 |
| 建物面積/坪数 | 84.18㎡ / 25.46坪 | 土地面積/坪数 | 270.37㎡ / 81.78坪 |
新築一戸建住宅
| 価格 |
3,799万円 | 交通 | 長崎本線 「鍋島」駅 徒歩15分 |
|---|---|---|---|
| 間取り | 4LDK | 所在地 | 佐賀県佐賀市鍋島町大字八戸 1151-2 |
| 建物面積/坪数 | 84.18㎡ / 25.46坪 | 土地面積/坪数 | 270.37㎡ / 81.78坪 |
「利回り」は、当該不動産の1年間の予定賃料収入の不動産取得対価に対する割合であり、公租公課その他当該物件を維持するために必要な費用の控除前のものです。
また、予定賃料収入が確実に得られる事を保証するものではありません。

新生活を失敗せず、スタートさせたいならこちらの「鍋島町八戸2号」はいかがでしょうか。新築戸建ての物件は、室内のレイアウトも自分好みに変更可能です。複層ガラスなので冷房が効きやすく、夏も涼しく過ごせます。佐賀市の長崎本線鍋島駅近辺にある一戸建てをお求めの方は、0952-20-1212からTOMカンパニーまで、こだわり条件を遠慮なくお聞かせください(^^)

※地図上の物件位置は近隣に物件が所在することを表すものであり、実際の物件所在地とは異なる場合がございます。
0952-20-1212
営業時間:10:00~18:00 / 定休日:水曜日、お正月休、お盆休、社内研修日(不定期)
| 所在地 | 佐賀県佐賀市鍋島町大字八戸 1151-2 | ||
|---|---|---|---|
| 交通 | 長崎本線 「鍋島」駅 徒歩15分 | ||
| 価格 | 3,799万円 | ||
| 間取り |
4LDK
|
||
| 築年月(築年数) | 2025年 7月(築1年未満) | 主要採光面 | |
| 建物構造 | 木造 | 階数 | 1階建 地下1階 |
| 私道負担面積 | セットバック | ||
| 接道状況 | 一方 (東側 公道4.0m 間口11.7m) | ||
| 建ぺい率/容積率 | / | 土地権利 | 所有権 |
| 地目 | 宅地 | 地勢 | |
| 土地の権利形態 | |||
| 都市計画 | 用途地域 | ||
| その他法令上の制限 | |||
| 国土法届出 | 不要 | 取引態様 | 一般媒介 |
| 現況 | 完成済み | 引渡し | 即時 |
| 駐車場 | 有 | ||
| 設備条件 | 公共下水 / 公営水道 / オール電化 / 複層ガラス | ||
| その他条件 | |||
| 備考 | 「鍋島町八戸2号」のここがイチオシ。一生に一度のマイホーム探しは、ぜひ新築戸建てで。環境にも優しいオール電化住宅なら、毎日が充実した快適な生活を送れると思います。建物面積は84.18㎡です。地域情報に詳しいTOMカンパニーのスタッフが住まい探しをサポートいたしますので、まずは0952-20-1212からお電話ください(*´ω`*) | ||
| 周辺の学校 | 新栄小学校(約618m / 徒歩8分) | ||
| 建築確認番号 | 第R07SHC100243号 | 物件番号 | 92501634 |
| 情報公開日 | 2025年12月14日 | 次回更新予定日 | 2025年12月25日 |
| 取引条件の有効期限 | 2025年12月25日 | ||
| 取扱い会社 |
TOMカンパニー株式会社 〒840-0801 佐賀県佐賀市駅前中央2丁目9-7ホワイトビル1F・2F 佐賀県知事(8)第1876号 佐賀県宅地建物取引業協会会員 全国宅地建物取引業保証協会会員 |
||
0952-20-1212
営業時間:10:00~18:00 / 定休日:水曜日、お正月休、お盆休、社内研修日(不定期)
| 所在地 | 物件の住所を表示。(詳細住所は表示していない場合もある) | ||
|---|---|---|---|
| 交通 | 物件(部屋)の沿線駅・バス停を表示。(複数駅・バス停の利用が可能な場合は最大3件まで) | ||
| 間取り/詳細 | 数字は居室数を表示。LDKはそれぞれ「リビング」「ダイニング」「キッチン」、S(納戸)とは「納戸」「サービスルーム」「マルチルーム」「フリールーム」など建築基準法第28条に適合していないため、居室と認められない納戸その他の部分を表す。 | ||
| 価格 | 販売されている住戸の価格を表示。仲介手数料は含まない。 | ||
| 管理費 | 共同住宅の設備その他共用部分の維持および管理をするために必要な費用を表示。 | ||
| 修繕積立金 | 共用部分の修繕のために積立てる金額を表示。 | ||

【外観】